1756- SOLARES EN MUÑOZ, PTO. PTA.
- Código de Propiedad: 1756
- Tipo de Propiedad: Solar / Terreno
- Sector: Muñoz
- Ciudad: Puerto Plata
- Tamaño de la propiedad: 130 m²
- Tamaño del lote: 130 m²
- Tipo de documento: Título deslindado
Características
- Aplica para financiamiento
- Financiamiento Directo
Detalles
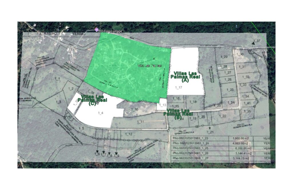
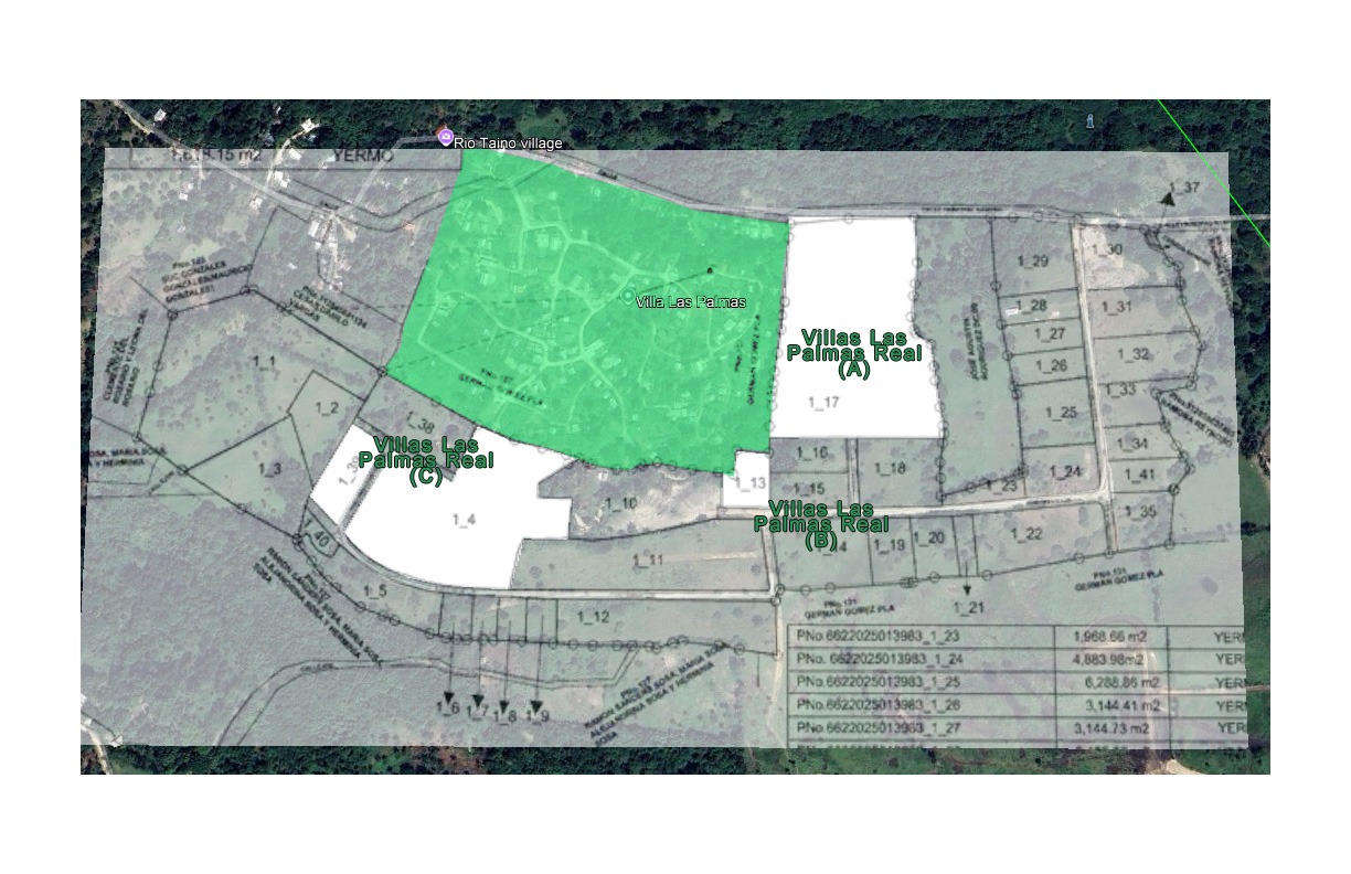
SOLARES EN MUÑOZ, PTO. PTA.
CÓDIGO: 1756
Proyecto de solares con excelente precio y ubicación!!
Villas Las Palmas Real. Proyecto de solares ubicado en la parte alta de Muñoz, próximo al cruce de Sampiñé.
>>A 7 minutos de Playa Dorada
>>Disponibles desde 130 mt2 en adelante a partir de RD$600,000 (A US$77 el metro)
>>Título Deslindado
PRECIOS DESDE: US$10,000
Financiamiento Disponible:
-Separa con RD$10,000
-Cuotas de RD$3,500 quincenal
-1 año para pagar sin interés ni penalidad
Aprovecha esta gran oportunidad!!
Contáctenos ahora: RD: 849-577-1141 / USA: (305) 257-8675. Estamos listos para ofrecerle el mejor servicio. ¡Gracias por elegirnos! Visítenos en www.brugalrivera.com.
- ID: 116621
- Views: 68